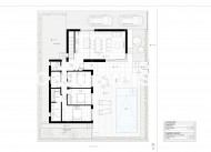
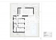
Villas de nueva construcción en Santa Rosalia Lake and Life Resort: vida exclusiva en Murcia Ubicación privilegiada cerca del Mar Menor Estas villas de nueva construcción se encuentran en el prestigioso Santa Rosalia Lake and Life Resort, una comunidad privada cerrada en la Región de Murcia. Rodeada de campos de golf de primera clase y a solo 4 km de las doradas playas del Mar Menor, la urbanización ofrece una combinación perfecta de privacidad, naturaleza y vida de lujo. La animada localidad costera de Los Alcázares se encuentra a solo 5 minutos en coche, mientras que la histórica ciudad de Cartagena está a 15 minutos. El aeropuerto internacional de Murcia se encuentra a unos 22 km, lo que garantiza un fácil acceso desde las principales ciudades europeas. Villas contemporáneas diseñadas para el confort Cada villa cuenta con un diseño moderno y diáfano con 3 dormitorios, 2 baños y un aseo para invitados. La luminosa y espaciosa zona de estar integra una cocina totalmente equipada con comedor y salón, que da acceso a un jardín privado con piscina. También se incluye una plaza de aparcamiento privada fuera de la vía pública. En la planta baja, un sótano acabado de 136 m² con paredes lisas y conexiones de agua y electricidad ofrece un espacio versátil para dormitorios adicionales, una oficina, un gimnasio, una sala de cine o una zona de juegos para los niños. Acabados de alta calidad y características sostenibles La atención al detalle es evidente en todos los aspectos de estas viviendas. Destacan la puerta de seguridad reforzada, las persianas motorizadas en los dormitorios, los armarios empotrados y la cocina amueblada con electrodomésticos. La vida sostenible está garantizada por seis paneles solares fotovoltaicos instalados. El jardín está totalmente acabado con césped artificial, palmeras, riego automático y arbustos decorativos. Un eficiente sistema de aire acondicionado por conductos garantiza el confort durante todo el año. Santa Rosalia Lake and Life Resort: un oasis al estilo caribeño El complejo cuenta con 126 000 m² de zonas verdes cuidadosamente ajardinadas con senderos para caminar y montar en bicicleta, instalaciones deportivas, pistas de pádel y tenis, minigolf, parques para perros, espacios de ocio y una casa club. La pieza central es una espectacular laguna cristalina de 17 000 m² con playas de arena blanca y palmeras, que crean un auténtico ambiente caribeño. Dos islas cuentan con zonas de ocio, incluyendo un bar y encantadores clubes de playa repartidos por el lago. Ideal para el descanso, el deporte y la inversión Este exclusivo complejo es perfecto para quienes buscan una residencia principal, una casa de vacaciones o una inversión de alto rendimiento. Su ubicación estratégica ofrece fácil acceso a atracciones culturales, gastronómicas y recreativas, lo que lo convierte en una opción excepcional tanto para familias como para los amantes del golf. Póngase en contacto con nosotros hoy mismo para asegurarse su nueva villa en Santa Rosalia Lake and Life Resort y empezar a disfrutar del estilo de vida mediterráneo.
Esta información que se proporciona aquí está sujeta a errores y no forma parte de ningún contrato. La oferta se puede cambiar o retirar sin previo aviso. Los precios no incluyen los costes de compra