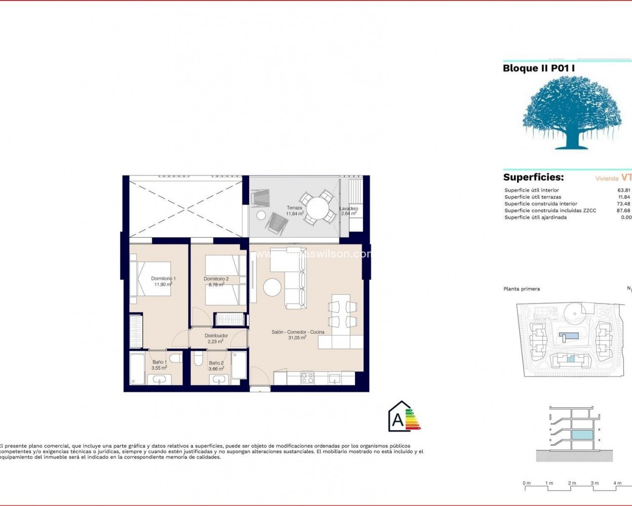
Complexe résidentiel exclusif de nouvelle construction près de la mer et du centre-ville de Denia Vivre entre la Méditerranée et le parc naturel du Montgó Situé dans un quartier privilégié de Denia, ce nouveau complexe résidentiel offre un équilibre parfait entre la mer Méditerranée et l'impressionnante montagne du Montgó, un parc naturel protégé. Profitez du meilleur des deux mondes : de superbes plages de sable et de rochers, des paysages à couper le souffle et une ville vibrante d'histoire et de culture. Denia : Une charmante ville côtière Denia, qui compte 43 000 habitants, est une destination touristique et gastronomique réputée de la Costa Blanca. Cette ville portuaire offre des liaisons directes par ferry avec les îles Baléares, d'excellentes infrastructures et un accès facile à Alicante et Valence par les grands axes routiers et les transports publics. La ville est célèbre pour : Son patrimoine historique, dont l'emblématique château de Denia. Sa cuisine de classe mondiale, reconnue par l'UNESCO en tant que ville créative de la gastronomie. Les festivals d'intérêt touristique national, tels que les Bous a la Mar et les Fallas. Un climat chaud et agréable tout au long de l'année, idéal pour les activités de plein air. Un emplacement de choix avec tout à portée de main Ce nouveau projet est situé dans l'un des quartiers les plus recherchés de Denia, à seulement 10 minutes à pied du centre-ville et à une courte distance de la plage. Supermarchés - 2 minutes à pied. Principales rues commerçantes de Denia - 10 minutes à pied. Plages - quelques minutes à pied. Port et marina de Denia - 2 km. Aéroports d'Alicante et de Valence - 1 heure de route. Accès aux principales autoroutes - Liaisons directes avec l'AP-7 et la N-332. Des maisons modernes dans un complexe résidentiel de style méditerranéen Ce nouveau projet comprend 63 maisons exclusives de 2 et 3 chambres à coucher, réparties dans trois bâtiments au design méditerranéen contemporain. Chaque résidence comprend un débarras privé et une place de parking. Des intérieurs spacieux et lumineux, conçus pour le confort. Des cuisines entièrement équipées avec des appareils électroménagers de grande marque. Des caractéristiques d'efficacité énergétique, y compris un système de climatisation aérothermique. Des finitions de haute qualité, telles que des menuiseries en PVC, des fenêtres Climalit et du verre de sécurité Stadip. Une expérience de vie unique entourée par la nature Les 10 000 m² d'espaces verts communs ont été conçus par des paysagistes experts, dans le respect de la beauté naturelle des environs. Au sein du complexe, vous trouverez Une ferme protégée du XIXe siècle et un ficus centenaire. Une piscine et un solarium, parfaits pour se détendre. Une salle de sport, un court de paddle et une aire de jeux pour les enfants. Un club social pour les résidents. Un parking pour les vélos et des bornes de recharge pour les véhicules électriques. Une maison idéale pour vivre à l'année ou investir Ce complexe résidentiel est parfait pour une vie permanente ou pour un investissement intelligent dans l'une des régions les plus attrayantes de la Costa Blanca. Avec des équipements de premier ordre, un emplacement de choix et un design exceptionnel, c'est une occasion rare de posséder une maison moderne à Denia. Contactez-nous dès aujourd'hui pour plus de détails ou pour programmer une visite !
Les informations fournies ici sont sujettes à des erreurs et ne font pas partie d'un contrat. L'offre peut être modifiée ou retirée sans préavis. Les prix n'incluent pas les frais d'achat.