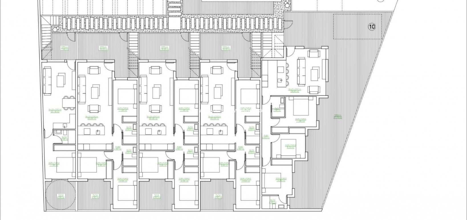
Nouveaux bungalows à San Pedro del Pinatar – Modernité et confort à quelques minutes de la mer La vie méditerranéenne dans un emplacement privilégié Cette nouvelle promotion de bungalows est située à San Pedro del Pinatar, l'une des destinations les plus attrayantes de la Costa Cálida, dans la région de Murcie. Entouré de tous les services, de zones sportives et de plusieurs terrains de golf, ce complexe est situé à seulement 5 minutes des plages de la mer Méditerranée et de la Mar Menor, deux des sites côtiers les plus populaires du sud-est de l'Espagne. Résidence exclusive alliant style et fonctionnalité Le complexe se compose de 10 bungalows neufs, avec des logements de 1 chambre et 1 salle de bain, idéaux pour ceux qui recherchent une option économique, ainsi que des options de 3 chambres et 2 salles de bain, conçues pour les familles ou ceux qui souhaitent plus d'espace. Chaque logement comprend : Place de parking privée Cuisine entièrement équipée, avec appareils électroménagers inclus Salles de bains modernes avec meuble lavabo, éclairage et paroi en verre Pré-installation de la climatisation par conduits Solarium privé dans les logements à l'étage, avec cuisine d'été Piscine communautaire avec zone de détente et solarium Finitions modernes et de haute qualité Conçus dans un souci de confort et d'efficacité, les bungalows sont construits avec des matériaux et des finitions de première qualité : Menuiserie extérieure en aluminium laqué gris foncé Volets roulants motorisés et double vitrage avec chambre à air Éclairage LED intérieur et extérieur Porte de sécurité à l'entrée Point d'eau sur la terrasse et le solarium Distances clés : Centre commercial Dos Mares : 3 km Plages de la Mar Menor : 3,5 km Camp de golf Lo Romero : 11 km Aéroport de Murcie-Corvera : 39 km Aéroport d'Alicante : 78 km Port de plaisance de San Pedro : 4 km San Pedro del Pinatar – Qualité de vie toute l'année Cette localité est célèbre pour ses bains de boue naturels, son atmosphère paisible et ses infrastructures sportives et nautiques modernes. Son climat doux toute l'année et son excellente connectivité en font un endroit idéal pour vivre ou passer ses vacances. La région de Lo Pagán offre une vie sociale animée avec des restaurants, des commerces et des divertissements pour tous les âges. Découvrez votre nouvelle maison sur la Costa Cálida Ces bungalows représentent une excellente opportunité d'investissement ou une escapade parfaite en Méditerranée. Contactez-nous dès aujourd'hui et réservez votre visite pour découvrir votre future maison à San Pedro del Pinatar.
Les informations fournies ici sont sujettes à des erreurs et ne font pas partie d'un contrat. L'offre peut être modifiée ou retirée sans préavis. Les prix n'incluent pas les frais d'achat.