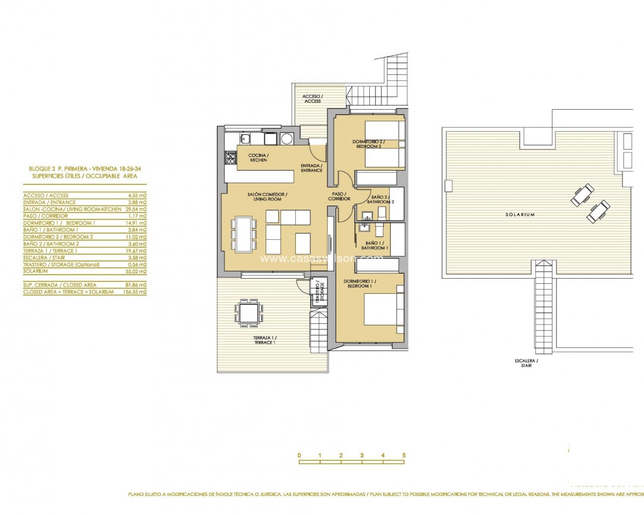
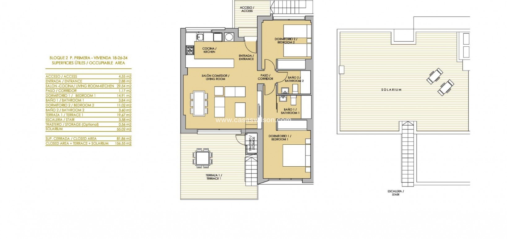
NOUVELLE CONSTRUCTION RÉSIDENTIELLE D'APPARTEMENTS DE PLAIN-PIED À VISTABELLA Nouveau complexe résidentiel de bungalows à Vistabella, près du terrain de golf. Le complexe, avec des installations communes et une piscine, se compose de bungalows de 2 et 3 chambres, au rez-de-chaussée avec un jardin privé et au dernier étage avec un solarium privé, une cuisine ouverte sur le salon, des placards, une terrasse. Chaque appartement dispose d'un parking privé. Un cellier d'options à un coût supplémentaire. Au Vistabella Golf, il y a de la place pour tout le monde. Le parcours est conçu pour que chaque joueur puisse en profiter du début à la fin. Ses rues ondulées, ses bunkers stratégiques ou ses lacs sont quelques-unes des caractéristiques qui font de ce terrain l'un des plus attrayants de la région, où chaque coup est un défi et un plaisir pour les sens. Les 18 trous du Vistabella Golf, par 72 et d'une longueur de plus de 6 000 mètres ont été conçus selon les directives des terrains modernes avec 4 tees de grande amplitude dans chaque trou, des fairways larges et des bunkers surélevés. Le club house et le restaurant du Vistabella Golf ainsi que les bars et les magasins locaux sont à 5 minutes de marche. La ville animée de San Miguel de Salinas et de Los Montesinos est à 5 minutes en voiture et les belles plages de Guardamar sont à 15 minutes en voiture. L'aéroport d'Alicante est à 35 minutes et le nouvel aéroport de Corvera Murcia est à 45 minutes.
Les informations fournies ici sont sujettes à des erreurs et ne font pas partie d'un contrat. L'offre peut être modifiée ou retirée sans préavis. Les prix n'incluent pas les frais d'achat.