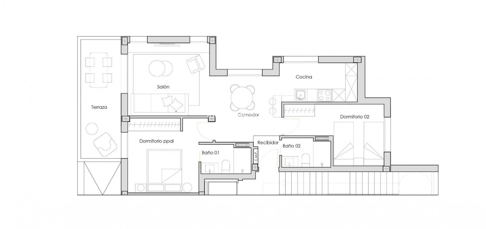
Appartements touristiques neufs à Santa Rosalía Lake and Life Resort Costa Cálida Emplacement privilégié au cœur de la Costa Cálida Ces appartements touristiques neufs à Santa Rosalía Lake and Life Resort représentent l'un des meilleurs investissements et l'une des meilleures opportunités de style de vie dans la région de Murcie. Situé à moins de 4 km des plages de Los Alcázares et à seulement 22 km de l'aéroport international de Murcie, le complexe offre une combinaison imbattable d'accessibilité, de loisirs et de vie méditerranéenne moderne. La ville historique de Carthagène n'est qu'à 15 minutes, tandis que plusieurs terrains de golf prestigieux sont situés dans un rayon de 10 km. Complexe résidentiel exclusif de 40 appartements Le projet se compose de cinq bâtiments indépendants comprenant au total 40 appartements entièrement meublés, répartis sur quatre étages avec deux unités par niveau. Chaque appartement dispose de 2 chambres et 2 salles de bains, conçues pour offrir confort et fonctionnalité. Les acheteurs peuvent choisir entre des unités au rez-de-chaussée avec jardins privés, des appartements aux étages intermédiaires avec de grandes terrasses ou des penthouses avec solarium privé et vue imprenable. Des logements entièrement équipés et prêts à emménager Chaque propriété est livrée clé en main, avec mobilier, climatisation, éclairage, appareils électroménagers, linge de lit, serviettes et un ensemble de décoration. Cela garantit aux propriétaires et à leurs invités une expérience sans souci dès le premier jour, ce qui en fait un produit idéal pour les locations de vacances ou l'usage personnel. Équipements haut de gamme et espaces communs La communauté fermée est située sur un terrain de 7 000 m², conçu dans un souci d'intimité et de sécurité grâce à une clôture périphérique et un accès contrôlé. Les résidents et les invités bénéficient de jardins méditerranéens paysagers, de piscines communes, d'aires de jeux pour enfants et de nombreuses places de parking. De plus, le complexe comprend un bâtiment dédié aux services communs tels que la réception, le café, la laverie et la salle de sport. Lac Santa Rosalía et Life Resort Lifestyle Posséder un appartement ici signifie avoir accès aux équipements exclusifs du lac Santa Rosalía et du Life Resort, un complexe résidentiel unique en son genre avec plus de 126 000 m² d'espaces verts. Parmi les points forts, citons un lagon spectaculaire de 17 000 m² aux eaux cristallines avec des plages de sable blanc, deux îles (dont une avec son propre bar), des clubs de plage, des installations sportives, des pistes cyclables et des sentiers de randonnée, des courts de paddle et de tennis, un mini-golf, des parcs pour chiens et un club-house animé. Les services de sécurité et d'entretien fonctionnent 24 heures sur 24, 7 jours sur 7, garantissant la tranquillité d'esprit des résidents et des visiteurs. Investissez dans la qualité et le style de vie Ces appartements touristiques neufs combinent un fort potentiel locatif et un style de vie exceptionnel sur la Costa Cálida. Que ce soit comme résidence secondaire ou comme investissement, Santa Rosalía Lake and Life Resort est une destination qui garantit qualité et valeur ajoutée. Contactez-nous dès aujourd'hui pour en savoir plus et réserver votre appartement dans ce complexe méditerranéen unique.
Les informations fournies ici sont sujettes à des erreurs et ne font pas partie d'un contrat. L'offre peut être modifiée ou retirée sans préavis. Les prix n'incluent pas les frais d'achat.