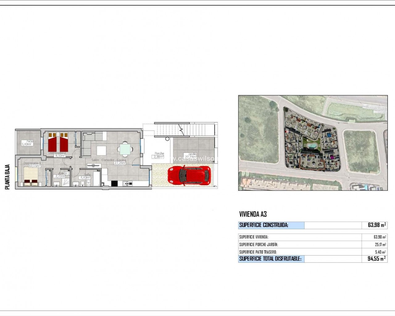
Nouveaux bungalows et maisons mitoyennes à Cox, Alicante Complexe résidentiel exclusif de 26 logements Découvrez ce nouveau complexe résidentiel à Cox, une charmante petite ville de la région de Vega Baja, dans la province d'Alicante. Le projet propose 26 logements modernes, dont des bungalows et des maisons mitoyennes de 2 ou 3 chambres, conçus pour offrir confort, intimité et un style de vie méditerranéen à son meilleur. Cox est réputée pour son environnement paisible, sa gastronomie traditionnelle et son cadre naturel magnifique, ce qui en fait un endroit idéal pour les familles, les vacanciers et les investisseurs. Des options immobilières adaptées à votre style de vie Choisissez parmi une variété de types de maisons adaptés à différents besoins : Bungalows au rez-de-chaussée avec jardin privé Bungalows au dernier étage avec terrasse et solarium privé Maisons de ville avec jardin, plusieurs terrasses et solarium privé Tous les bungalows au rez-de-chaussée et les maisons de ville disposent d'un parking privé à l'intérieur du terrain, garantissant commodité et sécurité. Chaque maison est conçue avec des agencements fonctionnels, une lumière naturelle abondante et une esthétique traditionnelle avec des intérieurs modernes. Caractéristiques de qualité et confort moderne Les maisons sont équipées de caractéristiques essentielles de haute qualité qui améliorent la vie quotidienne. Il s'agit notamment d'un éclairage LED intérieur et extérieur, de volets électriques, d'armoires encastrées, d'une porte d'entrée sécurisée et d'une pré-installation pour des panneaux solaires. Les cuisines sont entièrement équipées d'appareils électroménagers, tandis que les salles de bains comprennent des meubles, des miroirs et des parois de douche. Les solariums disposent également de cuisines d'été en plein air, idéales pour recevoir et profiter du climat méditerranéen. Équipements collectifs pour tous les résidents Le complexe résidentiel offre des espaces communs attrayants, notamment une piscine entourée d'espaces pour prendre le soleil et de zones paysagères, parfaits pour se détendre et socialiser. Emplacement privilégié avec une excellente connectivité Situé dans une zone bien desservie, ce complexe offre un accès rapide aux grandes villes et aux services essentiels : Aéroport international d'Alicante : 40 km Orihuela : 8 km Elche : 20 km Murcie : 25 km Ville d'Alicante : 48 km La Finca Golf : 12 km Vistabella Golf : 14 km Cox offre un accès facile aux autoroutes AP 7 et A 7, permettant de se déplacer facilement sur toute la Costa Blanca. Les attractions à proximité comprennent des zones commerciales, des installations sportives, des centres de soins de santé et de belles plages de sable telles que Guardamar del Segura et Torrevieja. Votre nouvelle maison au cœur de la Costa Blanca Que vous recherchiez une résidence permanente, une maison de vacances ou un bien immobilier à des fins d'investissement, ces maisons à Cox offrent une valeur et un style de vie exceptionnels. Contactez-nous dès aujourd'hui pour planifier une visite et vous assurer d'acquérir la maison idéale dans ce complexe exceptionnel.
Les informations fournies ici sont sujettes à des erreurs et ne font pas partie d'un contrat. L'offre peut être modifiée ou retirée sans préavis. Les prix n'incluent pas les frais d'achat.