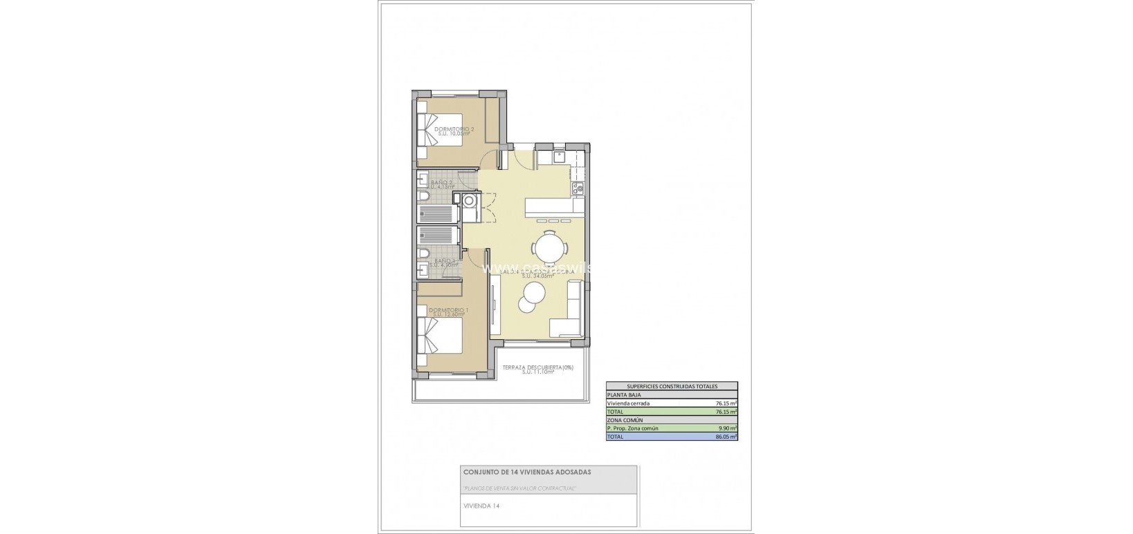
Appartements neufs à Rojales, à proximité du golf et des plages Une vie moderne dans un quartier en plein essor de Rojales Ce nouveau complexe résidentiel est situé dans une zone d'expansion moderne de la charmante ville de Rojales, au cœur de la Costa Blanca Sud. Le projet comprend 14 logements neufs dans sa première phase, conçus pour offrir confort, qualité et un excellent emplacement. Le quartier résidentiel permet d'accéder facilement à pied à tous les services quotidiens tels que les supermarchés, les restaurants, les banques et les pharmacies, ce qui le rend idéal pour y vivre à l'année ou pour y passer ses vacances. Choix entre des logements au rez-de-chaussée ou au dernier étage Le projet propose des appartements contemporains avec 2 chambres et 2 salles de bains, dont une chambre principale avec salle de bains attenante. Les acheteurs peuvent choisir entre des propriétés au rez-de-chaussée avec de spacieuses terrasses privées, parfaites pour la vie en plein air, ou des maisons au dernier étage avec une terrasse et un solarium privé, idéales pour prendre le soleil et se détendre. Certains des appartements du dernier étage sont accessibles par ascenseur, ce qui ajoute un confort et une accessibilité supplémentaires. Finitions de qualité et efficacité énergétique Toutes les maisons sont construites avec des matériaux de haute qualité et des spécifications modernes. Les salles de bains comprennent le chauffage au sol, des meubles encastrés avec miroirs et des parois de douche. Les cuisines sont entièrement meublées et équipées d'appareils électroménagers, offrant un design moderne et fonctionnel. Des volets roulants motorisés sont inclus, ainsi que la préinstallation pour la climatisation centralisée. Chaque propriété bénéficie également de l'installation de panneaux solaires photovoltaïques de 1 kW, contribuant à améliorer l'efficacité énergétique et à réduire les coûts de fonctionnement, ainsi que de la préinstallation pour un jacuzzi privé. Parking et confort communautaire Chaque maison comprend une place de parking privée dans le garage souterrain, offrant sécurité et confort. La conception résidentielle met l'accent sur la praticité et la vie moderne, offrant un environnement paisible dans une nouvelle zone urbaine bien planifiée de Rojales. Mode de vie et environnement à Rojales Rojales est une ville espagnole traditionnelle connue pour son atmosphère conviviale et son excellente qualité de vie. Elle offre tous les services essentiels, ainsi qu'un parc naturel à proximité, idéal pour la marche et les activités de plein air. La région est particulièrement appréciée des amateurs de golf, avec le parcours de golf La Marquesa situé à moins de 2 km et deux autres parcours à quelques minutes en voiture. Les plages Pavillon bleu de Guardamar del Segura ne sont qu'à 7 km et offrent de longues plages de sable et une belle promenade. Les parcs aquatiques et les installations de loisirs de Rojales et Torrevieja sont également à proximité. Distances vers les principaux points d'intérêt Parcours de golf La Marquesa : 2 km Plages de Guardamar : 7 km Torrevieja : 12 km Aéroport d'Alicante : 45 km Aéroport de Murcie Corvera : 55 km Votre nouvelle maison sur la Costa Blanca Ces appartements neufs à Rojales offrent une excellente combinaison entre emplacement, qualité et style de vie. Contactez-nous dès aujourd'hui pour recevoir plus d'informations ou pour organiser une visite et acquérir votre nouvelle maison sur la Costa Blanca Sud.
Les informations fournies ici sont sujettes à des erreurs et ne font pas partie d'un contrat. L'offre peut être modifiée ou retirée sans préavis. Les prix n'incluent pas les frais d'achat.