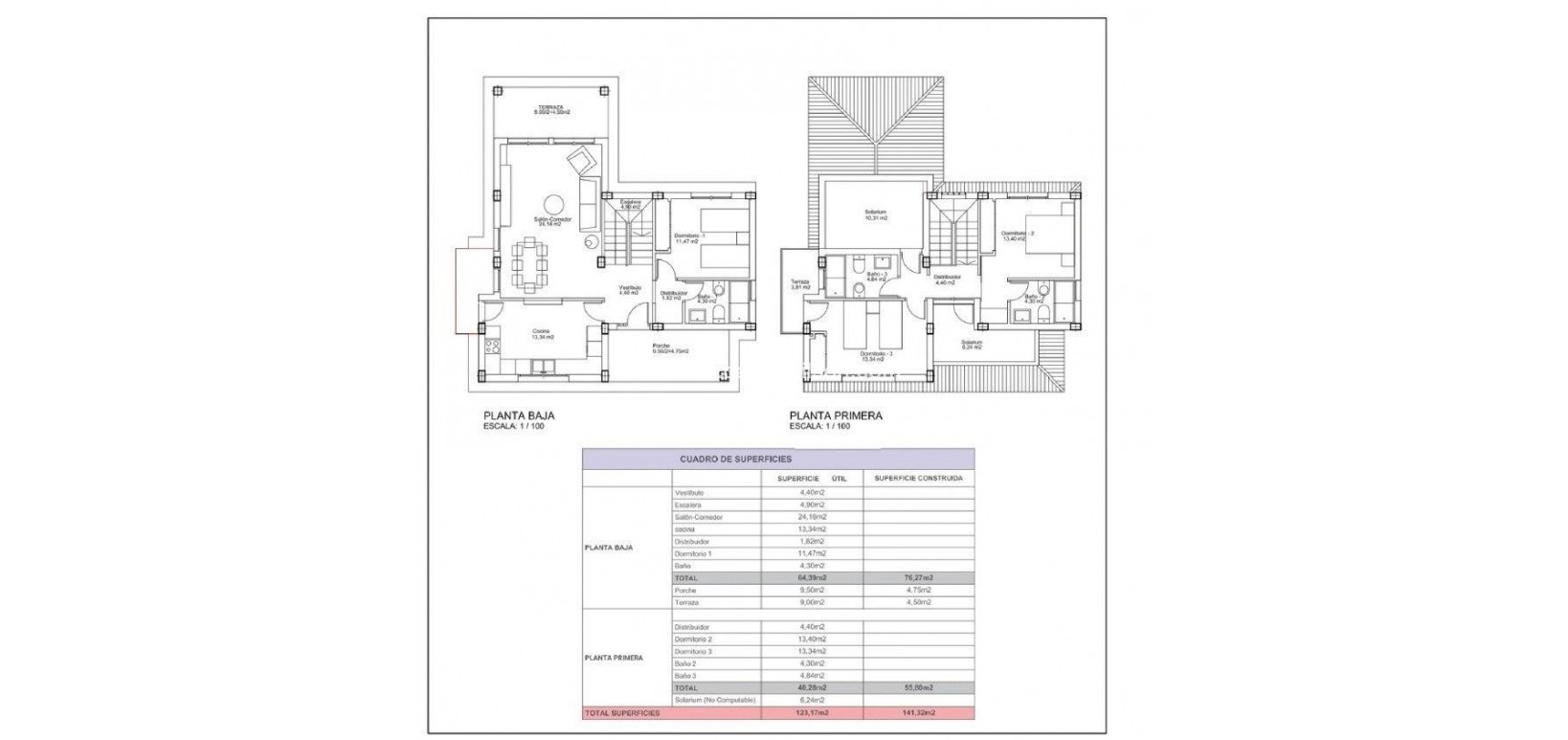
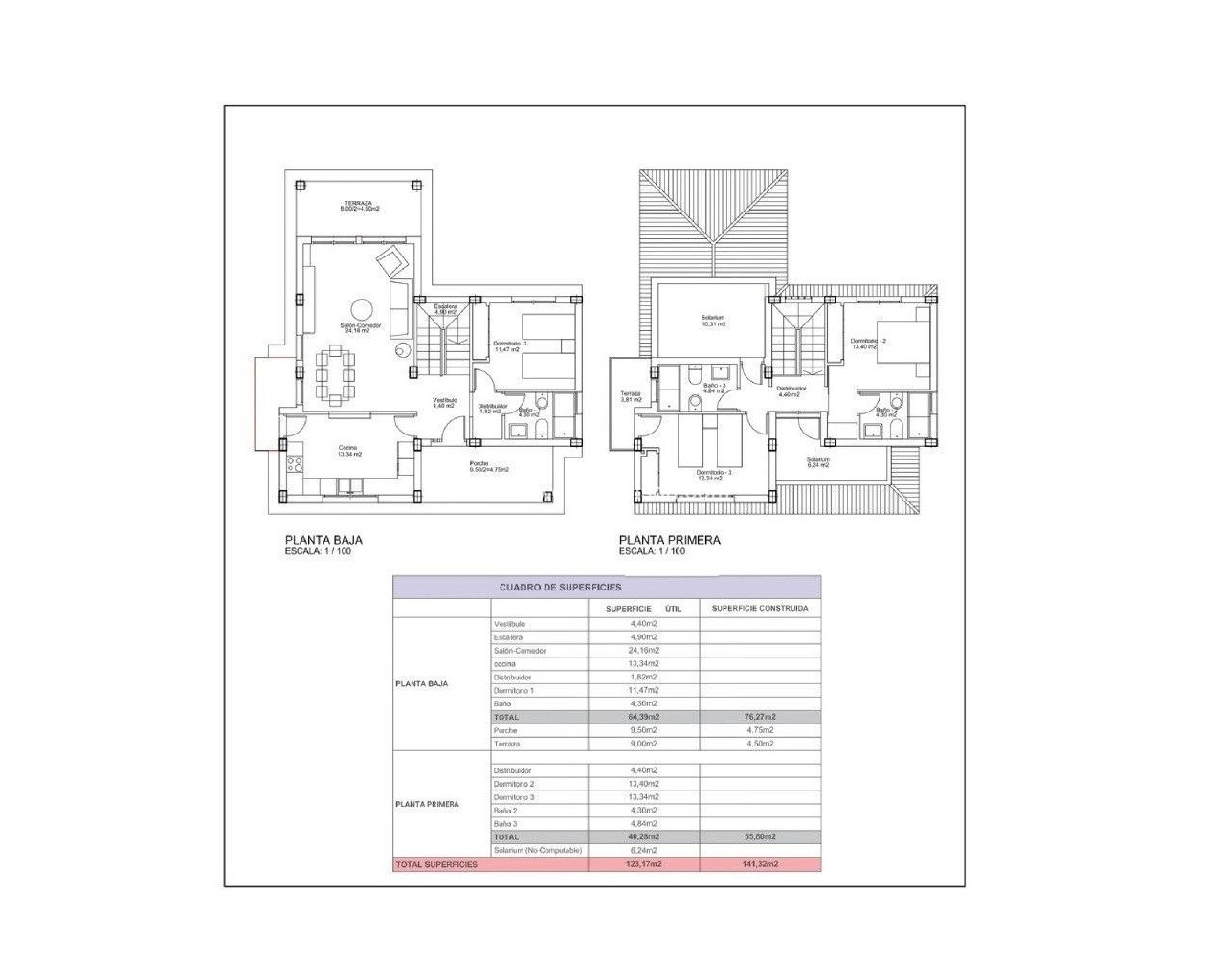
New Build Villas on Spacious 500+ m² Plots in Lorca New Mediterranean style Villas in a Secure and Tranquil Residential Area Discover an exclusive development of independent villas on plots of over 500m², strategically located in the southeast of Spain. These homes offer the perfect combination of countryside tranquility, proximity to the coast, and excellent road connections to major cities and airports. Nestled in a privileged setting on the Costa Cálida, this development benefits from year-round sunshine, making it an ideal location to enjoy the Mediterranean lifestyle. Spacious, Bright Homes with Private Gardens Designed for maximum comfort and relaxation, these villas feature open-plan living areas with large windows, seamlessly connecting indoor and outdoor spaces. The generous private garden offers the perfect setting for outdoor leisure, with the option to add a swimming pool and customize your landscaping. Choose from three villa models, available in one or two-story layouts, with 3 or 4 bedrooms and 2 or 3 bathrooms. Each home includes a private solarium, allowing residents to take full advantage of the beautiful surroundings. A Secure and Well-Equipped Community This gated urbanization offers a 24-hour security service with controlled access, ensuring peace of mind for all residents. Designed with green living in mind, the community includes: Two large landscaped parks for relaxation and family activities. Dedicated sports and play areas to promote an active lifestyle. Tree-lined streets and a 3.5 km cycle path running along the perimeter of the urbanization. A commercial zone at the entrance, which will feature a restaurant, supermarket, gas station, and other essential services. High-Quality Finishes for Maximum Comfort Each villa is built with top-quality materials and modern installations, including: Pre-installation for ducted air conditioning Pre-installation for natural gas Security entrance door Double-glazed Climalit windows Fully fenced community with 24-hour surveillance Prime Location – Close to the Coast and City Amenities Situated in a newly developed area of Lorca municipality, these villas offer a natural and peaceful environment while maintaining easy access to key locations: Lorca city center – 10 km Águilas beaches – 20 km Murcia-Corvera Airport – 70 km Alicante Airport – 130 km Shopping centers and restaurants – 10 km Find Your Ideal Home in Costa Cálida With 50 homes already completed and a total of 320 planned, this is your opportunity to secure a new mediterranean style villa in a thriving new community. Whether for a permanent residence, holiday home, or investment, these properties offer excellent value in a prime location. Contact us today to learn more and arrange a visit!
This info given here is subject to errors and do not form part of any contract. The offer can be changed or withdrawn without notice. Prices do not include purchase costs.