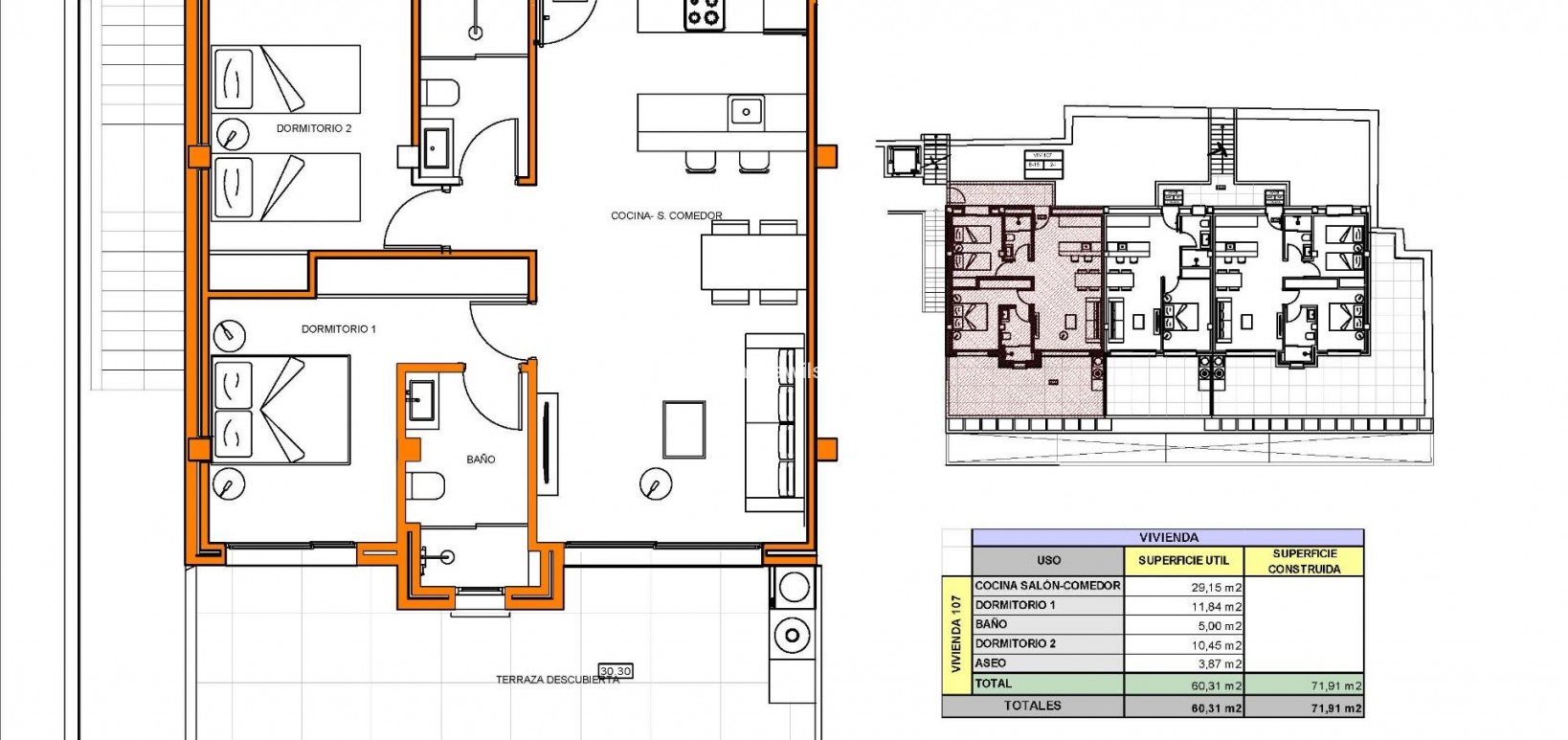
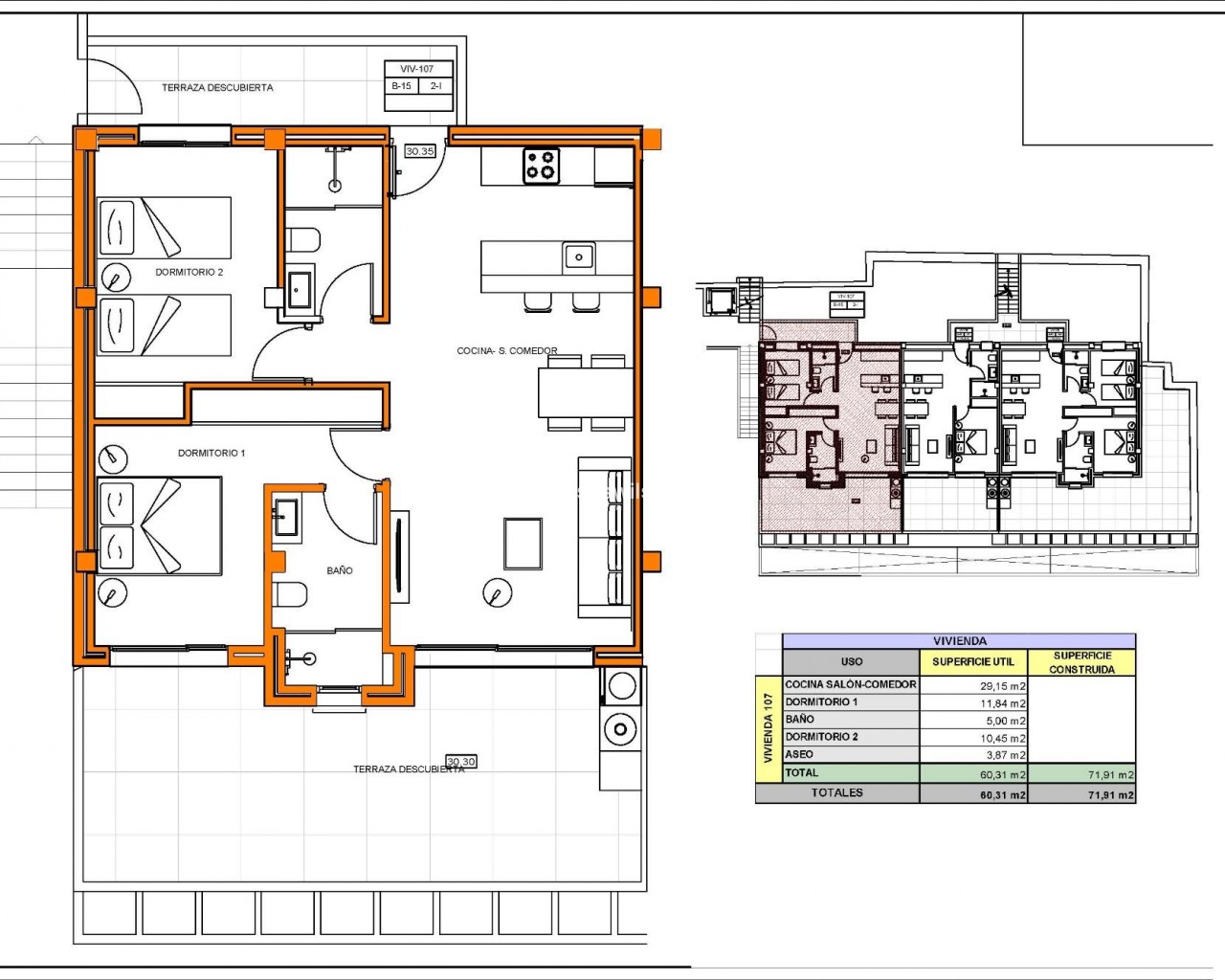
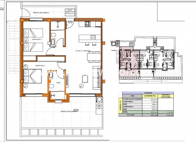
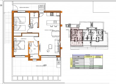
New Build Apartments with Sea Views in Xeresa Costa Blanca North Modern Residential Community with Panoramic Views Introducing an exceptional new build residential development in a private gated community in Xeresa, offering 1, 2 and 3 bedroom apartments with 1 or 2 bathrooms and stunning open views. Each home features a spacious terrace of over 15 m2, providing panoramic vistas of the orange groves, surrounding mountains or the Mediterranean Sea in the distance. Designed for comfort, light and natural surroundings, this development is ideal for those seeking a peaceful lifestyle close to the coast. Prime Location Close to Beaches and Services Just 3 km from the beach and only 1 km from the charming village of Xeresa, residents enjoy easy access to shops, cafes and essential services. The train station in Xeraco, located 3 km away, offers direct connections to Valencia city, while the popular coastal town of Gandia is less than 5 km from the complex, providing shopping centres, dining, leisure facilities and a beautiful marina. High Quality Homes Designed for Comfort and Light All apartments are thoughtfully designed so that the main living areas benefit from direct natural light and exterior views. The open concept layout enhances space and creates a modern, harmonious atmosphere ideal for enjoying Mediterranean living. Homes include parking and storage room, elevator, pre installation of ducted air conditioning, fitted and equipped kitchens with induction hob, extractor hood, oven and dishwasher, plus premium Porcelanosa finishes throughout. Resort Style Community Amenities Residents can enjoy three spectacular swimming pools, including one with waterfalls and another tropical pool with hydromassage features. The community also offers beautifully landscaped gardens with walking paths, a fully equipped gym with cutting edge machines, multi purpose social club, relaxation areas with sun loungers, showers and parasols, and large green spaces designed for leisure and wellbeing. Distances to Points of Interest Beach 3 km Xeresa village centre 1 km Xeraco train station 3 km Gandia 5 km Valencia city 60 km Valencia Airport 70 km Gandia Marina 6 km Enjoy Mediterranean Living in Nature and Near the Sea Discover an exceptional opportunity to own a modern home with sea or mountain views in a peaceful yet well connected setting. Contact us today for more information or to schedule a viewing and secure your new home in Xeresa.
This info given here is subject to errors and do not form part of any contract. The offer can be changed or withdrawn without notice. Prices do not include purchase costs.