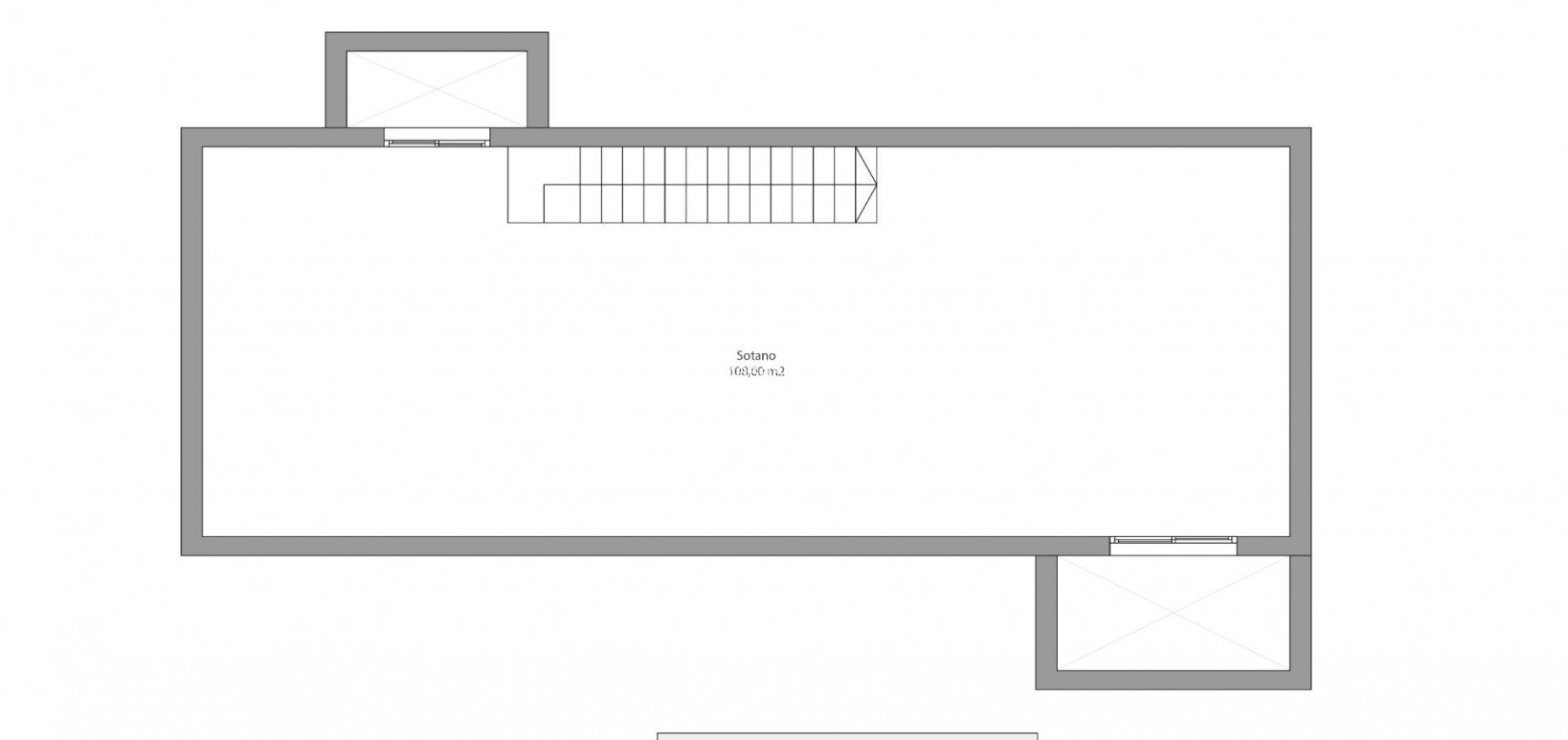
Newly built villas with sea views in Finestrat-Benidorm Exclusive residential complex with views of the sea and the city of Benidorm. Set of only 7 newly built detached villas in Finestrat-Benidorm, offering stunning panoramic views of the Mediterranean Sea and the Benidorm skyline. These modern properties have 3 bedrooms, 2 bathrooms and 1 toilet all on one floor, with the possibility of adding a basement for an extra cost. If you choose to add the basement, it will have natural ventilation and cross ventilation through 2 English patios on opposite sides, you can add an extra bedroom and bathroom and you can also add a games room, office, cinema room or whatever the future owners want to design. The properties have private plots of more than 500 m2 with private swimming pool, parking area and sea views. Built with high quality materials, these homes make the most of natural light throughout the day and have large terraces to enjoy the more than 320 days of sunshine a year in Alicante. Privileged location close to the best of the Costa Blanca This exclusive residential complex is located close to some of the best beaches, shopping areas and leisure facilities on the Costa Blanca. Distances to key locations: Beaches (Levante, Poniente, Cala de Finestrat) - 4 km. Golf courses (Sierra Cortina, Villaitana) - 1 km. Benidorm town centre - 5 minutes by car. Alicante International Airport - 40 km (30 minutes by car). High speed train connection (AVE) - 30 minutes. The area offers excellent connectivity and is surrounded by essential services such as hospitals, schools, public transport, shopping centres and restaurants. Premium features for comfort and quality Each property includes: Parking space within the plot. Reinforced security door. PVC windows with thermal break and double glazing. Pre-installation of ducted air conditioning. Aerothermal system for hot water. Private swimming pool of 36m2. A unique opportunity for investment and quality of life Situated in the beautiful Marina Baixa region, Finestrat offers a tranquil setting whilst being just minutes away from vibrant Benidorm. Enjoy the best of both worlds: relax in serene surroundings whilst having access to major attractions such as Terra Mitica, Aqualandia, Mundomar and Terra Natura. With its proximity to beaches, golf courses and outdoor activities such as hiking in Puig Campana, this is one of the best areas to invest in the Costa Blanca. Don't miss out on this unique opportunity! Contact us today to schedule a viewing and find your dream home in Finestrat-Benidorm.
This info given here is subject to errors and do not form part of any contract. The offer can be changed or withdrawn without notice. Prices do not include purchase costs.