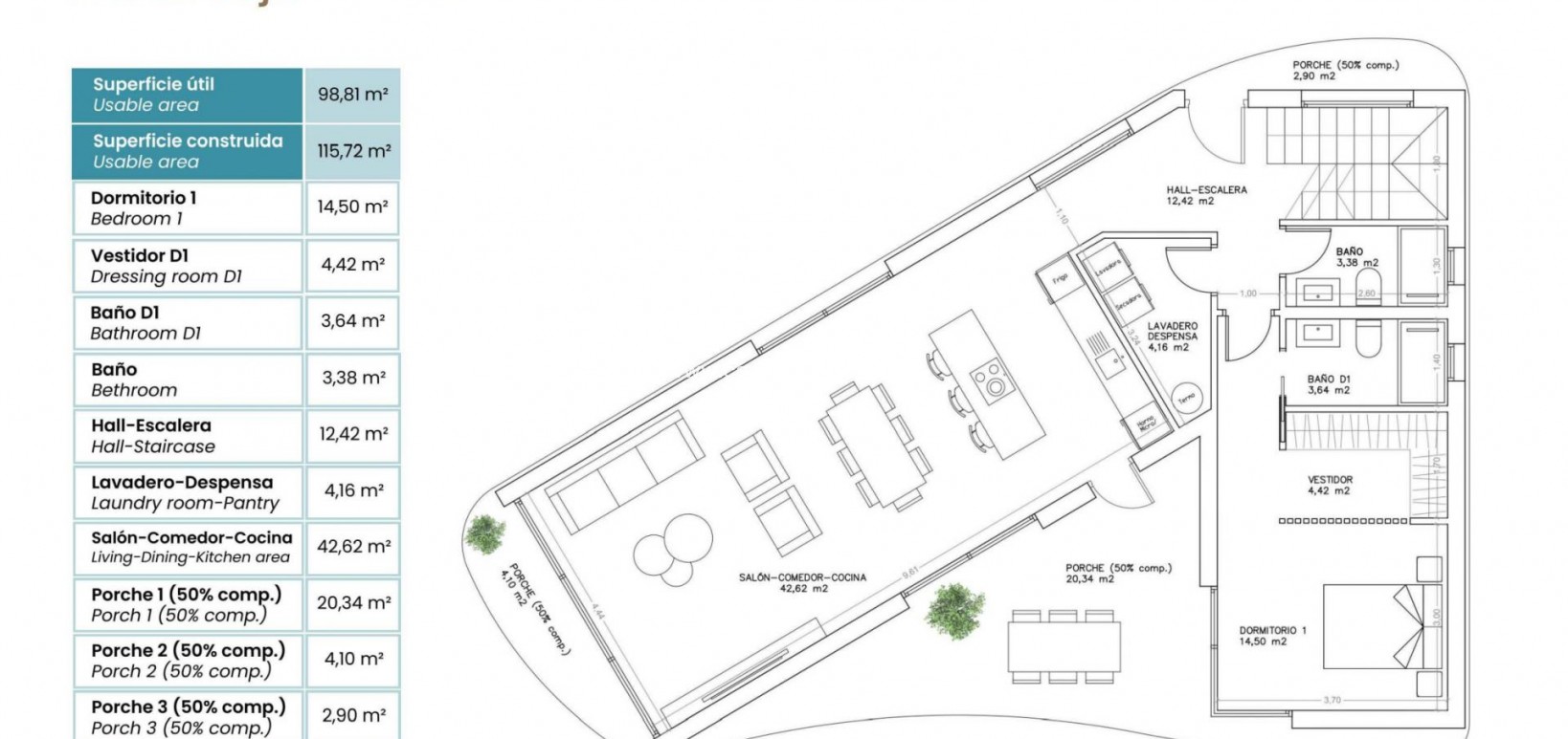
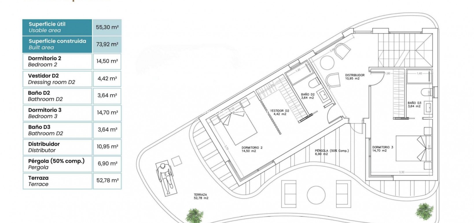
Villa in La Zenia that redefines the concept of Mediterranean luxury Just 700 metres from La Zenia beach, one of the most exclusive beaches on the Orihuela Costa, this stunning villa combines contemporary design, exclusive surroundings and an unrivalled location. A home designed for those seeking the exceptional: privacy, absolute comfort and a unique seaside living experience. Set on a spacious 592 m² plot, this detached luxury villa has 3 bedrooms and 4 bathrooms and is spread over two floors with spacious and bright rooms. On the ground floor, a spectacular open-plan living-dining room flows into the designer kitchen and opens through large windows onto the private garden and swimming pool with jacuzzi, creating a perfect continuity between indoors and outdoors. This area becomes a true oasis of relaxation, ideal for enjoying the privileged climate of the Costa Blanca. The rear of the property has independent access and private parking for 2 cars, ensuring comfort and privacy. On this same floor there is a master bedroom with a dressing room and en-suite bathroom, as well as an additional guest bathroom. The first floor has two additional bedrooms, both with en-suite bathrooms, dressing rooms and direct access to a large terrace with spectacular open views of the surroundings. On the top floor is the private solarium, equipped with a shower and summer kitchen, an exclusive space to enjoy golden sunsets over the sea and golf course. Every detail has been carefully selected to offer maximum comfort and sophistication: double glazing, reinforced entrance door, electric shutters, video intercom, home automation system, full bathrooms with underfloor heating, aerothermal system, ducted air conditioning, and interior and exterior LED lighting. The fitted kitchen, equipped with high-end appliances and with the option of customising the finishes, completes this masterpiece of design and elegance. The location is unbeatable. Just a few minutes away are some of the most exclusive golf courses in the Mediterranean, such as Villamartín Golf, Las Ramblas Golf, Campoamor Golf and Las Colinas Golf & Country Club, all of which are internationally renowned destinations. In addition, Alicante-Elche International Airport is only a 45-minute drive away, and Murcia-Corvera Airport is 35 minutes away, offering perfect connections to major European cities. Surrounded by the most iconic beaches of Orihuela Costa, such as La Zenia, Cala Capitán and Cala Cerrada, and very close to the exclusive La Zenia Boulevard shopping centre, this villa combines privacy, elegance and proximity to everything that defines the most select Mediterranean lifestyle. This villa is not just a home, but a work of architecture designed for those who seek the extraordinary. Contact us and discover the privilege of living in one of the most exclusive villas on the Costa Blanca.
This info given here is subject to errors and do not form part of any contract. The offer can be changed or withdrawn without notice. Prices do not include purchase costs.