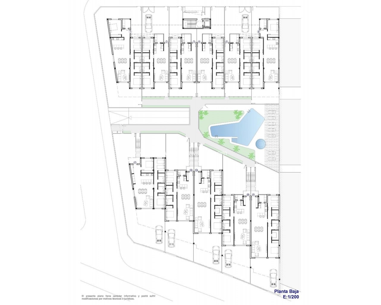
New Build Apartments and Bungalows for Sale in Pilar de la Horadada Near the Beach Exclusive Residential Development on the Southern Costa Blanca Discover this modern new build residential complex located in Pilar de la Horadada, the southernmost town on the Costa Blanca. This boutique development offers a selection of contemporary apartments and bungalows designed to combine comfort, functionality and Mediterranean lifestyle. The project consists of only 26 carefully designed homes with 2 or 3 bedrooms and 2 bathrooms, making it an ideal option for both permanent residence and holiday living. The complex is located in a quiet residential area within walking distance of the town center, where residents can enjoy restaurants, cafes, supermarkets, local shops and all essential services. Pilar de la Horadada is a charming Spanish town known for its welcoming atmosphere, lively main street and beautiful plazas. With excellent connections to nearby coastal areas and golf resorts, it is a popular destination for international buyers seeking sunshine and quality of life. Apartments and Bungalows with Private Outdoor Spaces The development offers two different property types to suit various lifestyles. The complex includes 16 modern apartments. Buyers can choose between ground floor units with private gardens, middle floor apartments with spacious terraces or penthouses with private terraces and rooftop solariums. There are also 10 bungalows available. Ground floor bungalows feature private gardens and parking within the plot, while top floor bungalows offer terraces and private solariums. There are optional parkings and storages at underground for an extra cost. All homes have been designed with bright interiors, open layouts and comfortable living areas that extend naturally to the outdoor spaces. Quality Construction and Modern Features The homes are built with high quality materials and modern systems to ensure comfort and energy efficiency throughout the year. Furnished kitchens Fully equipped bathrooms with shower screens and underfloor heating Energy efficient aerothermal hot water system Pre installation for ducted air conditioning Residents also benefit from a communal swimming pool surrounded by landscaped gardens and sunbathing areas, creating a relaxing environment to enjoy the Mediterranean climate. Excellent Location Close to Beaches and Golf The development enjoys a strategic location close to some of the best beaches and golf courses in the region. Torre de la Horadada beach 3 km Mil Palmeras beach 3 km Lo Romero Golf 6 km Region de Murcia International Airport 45 km Alicante Elche Airport 75 km The area also offers excellent road connections to nearby coastal towns, marinas and leisure facilities along both the Costa Blanca and Costa Calida. Find Your New Home in Pilar de la Horadada This attractive new build residential complex offers modern homes, quality finishes and a fantastic location close to the beach. Contact us today for more information or to arrange a visit and secure your new property on the Costa Blanca.
This info given here is subject to errors and do not form part of any contract. The offer can be changed or withdrawn without notice. Prices do not include purchase costs.