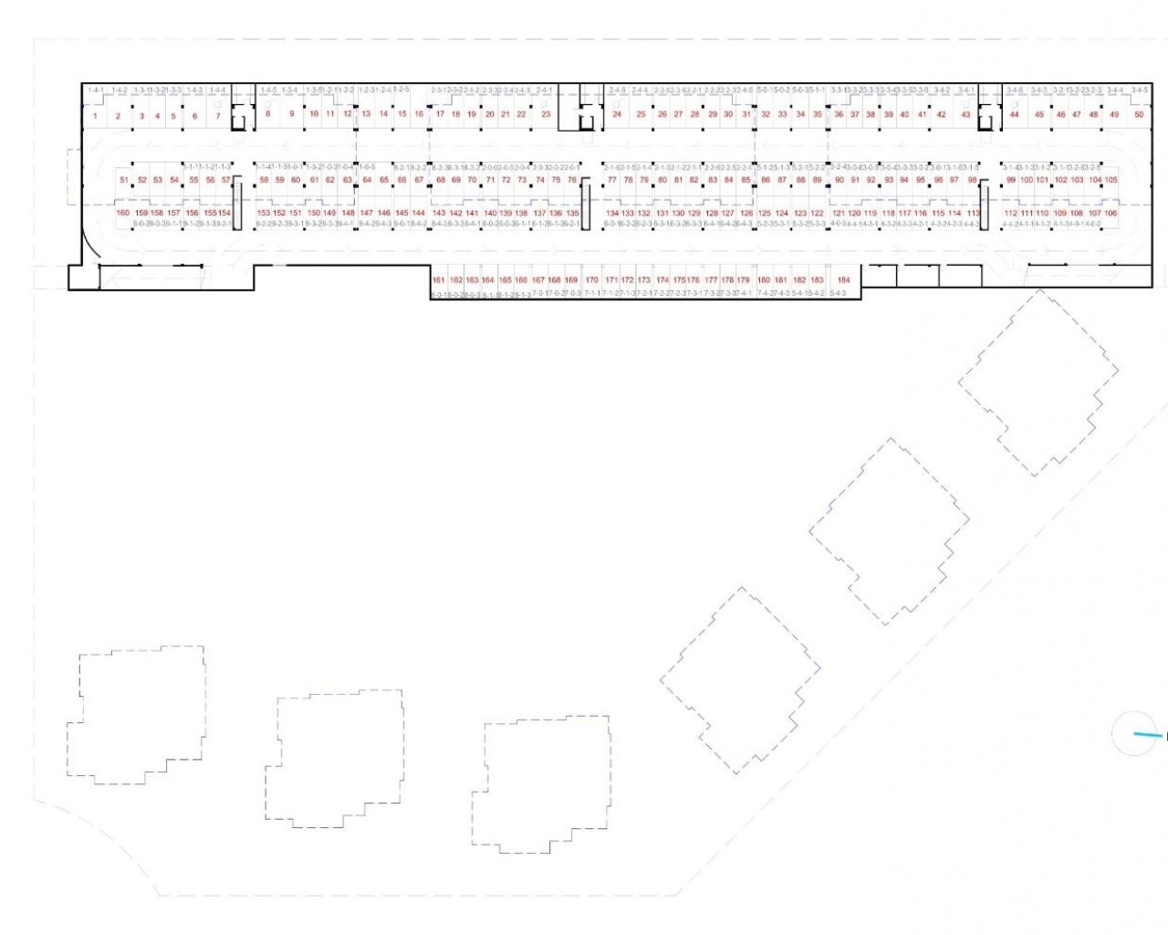
NIEUWBOUW WONING IN EL RASO, GUARDAMAR DEL SEGURA Nieuwbouw wooncomplex met appartementen in moderne stijl in El Raso, Guardamar del Segura! Deze appartementen hebben 3 slaapkamers, 2 badkamers, open salon met keuken, begane grond met privé tuin, middelste verdieping met terras en bovenste verdieping met privé solarium. Complex met zwembad, groene zones, golfbanen, Spa, speeltuin, bio-gezondheidsmachines en sportzones. Complex gelegen in groene omgeving dichtbij het zoutmeer, alle voorzieningen, op loopafstand van commercieel centrum, bars en restaurants. El Raso maakt deel uit van Guardamar del Segura. Guardamar del Segura is een stad gelegen aan de Costa Blanca Zuid. Met zijn 11 kilometer natuurlijk strand en zijn grote dennenbos. Guardamar del Segura heeft een grote haven met het hele jaar door activiteiten, het heeft een groot sportcentrum met paddle tennis, tennis, voetbal en een groot verwarmd zwembad dat het hele jaar door werkt. Het heeft ook een bibliotheek waar er gratis wifi en computers zijn. Guardamar del Segura ligt op slechts 20 km afstand van de luchthaven Alicante - Elche (El Altet), waar dagelijks vele vluchten zijn met verbindingen naar de belangrijkste Europese steden, vanwege de vraag naar toeristen aan de Costa Blanca.
De verstrekte informatie is onderhevig aan fouten en maakt geen deel uit van een contract. Het aanbod kan zonder voorafgaande kennisgeving worden gewijzigd of ingetrokken. Prijzen zijn exclusief aankoopkosten.