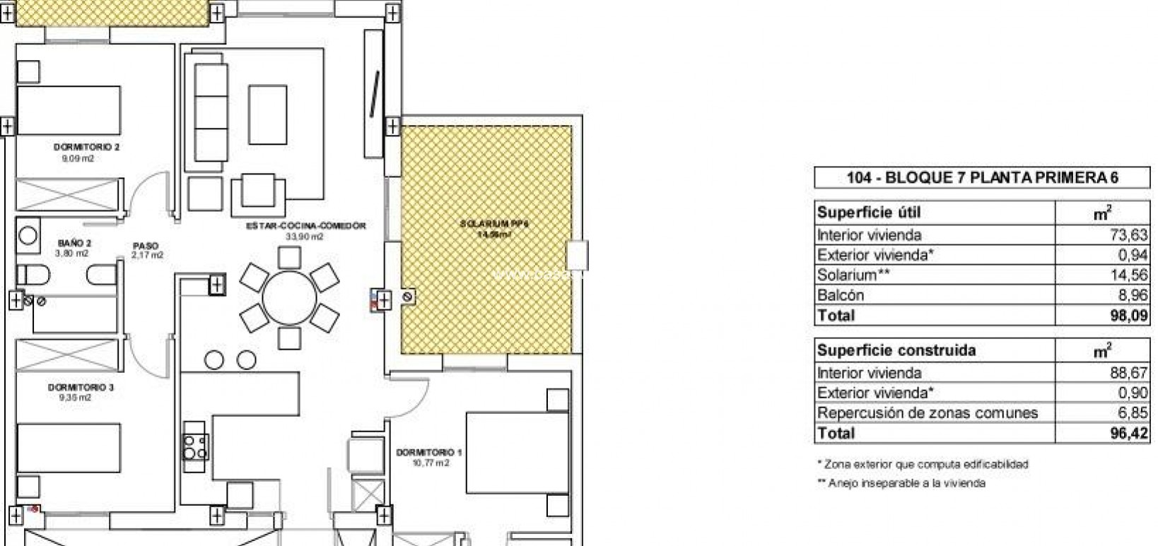
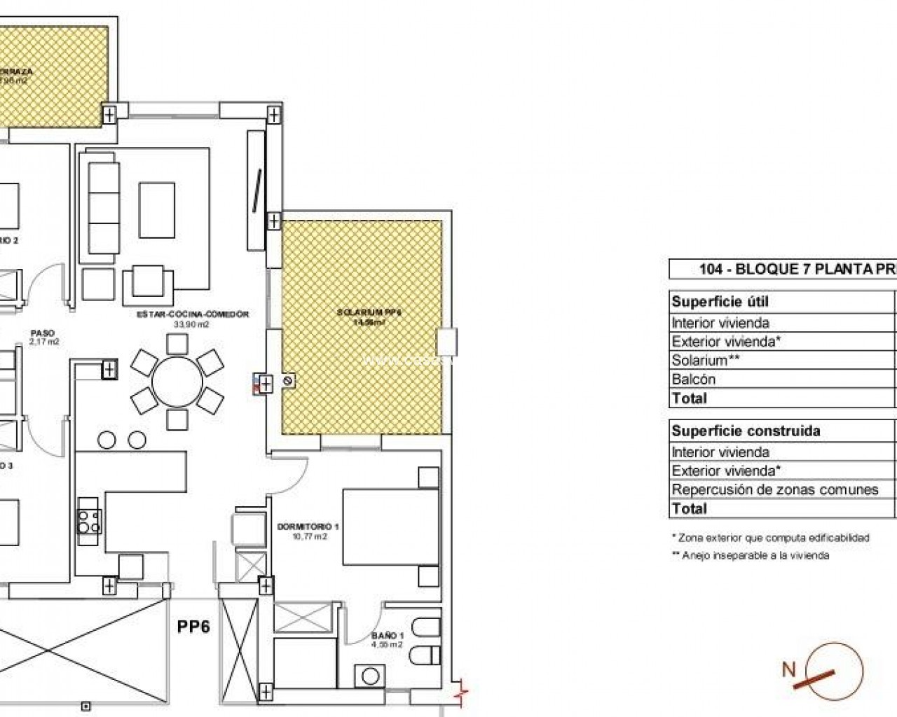
NIEUWBOUW WOONCOMPLEX IN VERA Nieuwbouw wooncomplex van appartementen in Vera op slechts 400m van het enorme Vera strand genaamd "El Playazo". De typologieën zijn begane grond met twee prive-tuinen, een in elke oriëntatie, die u toelaat om te genieten van zon of schaduw wanneer u maar wilt, afhankelijk van het tijdstip van de dag of het seizoen van het jaar. De eerste verdiepingen hebben terrassen en de penthouses hebben grote solariums. Alle appartementen hebben extra hoge plafonds (2,95 m) die een groot gevoel van ruimtelijkheid geven. De keuken is volledig gemeubileerd en uitgerust en geïntegreerd met de woon-eetkamer met een bar gedeelte. De deuren en inbouwkasten zijn wit gelakt en de vloer is gemaakt van gelamineerd hout. De warm-koud airconditioning en het warme water worden gegenereerd door een state-of-the-art DAIKIN Aerothermal apparaat, een technologie die tot 70% van het elektriciteitsverbruik bespaart in vergelijking met traditionele systemen. Alle badkamers hebben een douche in plaats van een badkuip, met verzonken spiegels en ook met een stenen aanrechtblad en glazen scheidingswand in de hoofdbadkamer. De rolluiken in de woonkamer en de hoofdslaapkamer zijn elektrisch, hermetisch afgesloten en met verstelbare lamellen. De tuinen en het solarium worden opgeleverd met de vloeren afgewerkt met een combinatie van kunstgras en een mooie bestrating die hout imiteert. Elk huis heeft een eigen parkeerplaats buiten. Elk blok van de promotie heeft een onafhankelijke lift. Zowel de gebouwen als de appartementen hebben een reeks bioklimatologische architectonische kenmerken (oriëntatie, isolatie, ramen en luiken, pergola's) die een optimale natuurlijke regulering van ventilatie, temperatuur en licht gedurende de verschillende seizoenen van het jaar mogelijk maken. De gemeenschappelijke ruimtes bestaan uit voetgangerspleinen en groene zones, met een groot zwembad voor volwassenen en een ander voor kinderen op het centrale plein. De hele urbanisatie is vrij van architectonische barrières voor gehandicapten. Rust en ontspanning zijn hier gegarandeerd. Vera is een van de beste naturistenplaatsen van Europa, erkend om de kwaliteit en zuiverheid van het water. Het biedt zes kilometer strand (Las Marinas-Bolaga, Puerto Rey, El Playazo, Quitapellejos). Vera grenzend aan de beroemde toeristische bestemmingen zoals Mojacar en de Almanzora Grotten. Residentieel complex gelegen op ongeveer 1,5 uur rijden van de luchthaven van Murcia - Corvera en op ongeveer 2 uur rijden van de luchthaven van Alicante.
De verstrekte informatie is onderhevig aan fouten en maakt geen deel uit van een contract. Het aanbod kan zonder voorafgaande kennisgeving worden gewijzigd of ingetrokken. Prijzen zijn exclusief aankoopkosten.