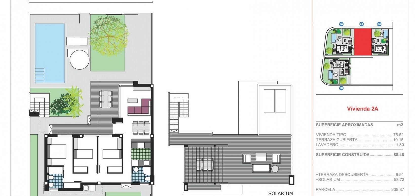
NIEUWBOUW HALFVRIJSTAANDE VILLA'S IN ELS POBLETS Nieuwbouwproject met 4 prachtige woningen met tuin, privéparkeerplaats en de mogelijkheid van een privézwembad. Op een onovertroffen locatie naast het stadscentrum, het winkelcentrum en allerlei diensten zullen woningen met drie slaapkamers en twee badkamers met tuin en solarium worden gebouwd. Nieuwbouw halfvrijstaande villa's gebouwd over 1 verdieping en heeft 3 slaapkamers, 2 badkamers, open keuken met de woonkamer, inbouwkasten, eigen tuin met de off road parkeerplaats, prive solarium. Mogelijkheid voor een privézwembad tegen meerprijs. Kenmerken: -Ingebouwde beklede kasten, verdeeld met opknoping bar, laden en interieur LED-verlichting. Installatie van lineaire LED-verlichting in het hele huis. -Installatie van airconditioning in de woonkamer en slaapkamers (inclusief de machine). USB-opladers in slaapkamers. -Installatie van individuele fotovoltaïsche panelen zonder batterij op het dak volgens de voorschriften. -Pre-installatie van oplader voor elektrische auto's. -Structuur van gewapend beton. -Gevel met eenlaagse afwerking. -PVC buitenschrijnwerk met thermische onderbreking, dubbele beglazing met luchtkamer van het type ¨Climalit¨ en lage emissiviteit. -Gepantserde toegangsdeur. -Porseleinen of gelijkwaardige binnenvloeren, de plinten worden gelakt zodat ze bij het binnenschrijnwerk passen. -Verticale wanden van badkamers en toiletten in porselein of gelijkwaardig. -Wanden afgewerkt met gladde kunststofverf. -Keuken met hoge en lage kasten, Silestone of gelijkaardig werkblad uitgerust met inductiekookplaat met geïntegreerd ventilatiesysteem en elektrische oven. -Sanitair van geglazuurd porselein met ingebouwd reservoir. -Vlakke douchebakken van hars, inclusief doucheschermen. - Wastafel met meubel en spiegel met ingebouwde LED-verlichting in alle badkamers en toiletten. -Mengkranen. -Binnendeuren wit gelakt. Els Poblets ligt tussen Alicante en Valencia, op 1 uur van beide luchthavens. Els Poblets ligt in een vlakte gevormd door alluviale gronden van de rivier de Girona. Het strekt zich uit over ongeveer 1 km kustlijn aan de Middellandse Zee en bevat het strand van Almadrava. Grenzend aan Denia en El Verger zijn er 24 km prachtige BLUE FLAG stranden om uit te kiezen. De stad en het strand liggen ongeveer 1 km uit elkaar. Terwijl veel Spaanse kustplaatsen in de winter gesloten zijn, is Els Poblets het hele jaar geopend met alle voorzieningen zoals bars, banken, winkels, restaurants, supermarkten, kappers en is het een vriendelijke stad met gemengde nationaliteiten, voornamelijk Spanjaarden met enkele ex-patriotten.
De verstrekte informatie is onderhevig aan fouten en maakt geen deel uit van een contract. Het aanbod kan zonder voorafgaande kennisgeving worden gewijzigd of ingetrokken. Prijzen zijn exclusief aankoopkosten.